深中国际部作为深圳市唯一的省重点中学国际部,以其丰富的AP和A-Level课程体系、优质的教育资源、卓越的升学成绩,持续引领学生迈向世界顶尖学府。
深圳中学国际部简介

创办时间:1947年
课程内容:AP课程、A-Level & IGCSE课程
开设年级:高一、高二、高三
学校地址:深圳市罗湖区泥岗西路1068号
课程体系
深中国际部采取“一体两翼”模式,以多元课程为主体,社团活动和学术竞赛为两翼,形成个性化、立体化的课程格局。课程资源丰富,开设 360余门校本选修课,满足学生多样化学习需求。
深圳中学整体设置三大课程体系:标准课程体系、实验课程体系、荣誉课程体系。其中,国际课程体系包含在实验课程体系之内。
国际部的学生在完成出国升学方向的培养时,仍需修满国家规定的必修课程学分。
高一阶段:以国家基础必修课程为主,同时可选修部分 AP、IGCSE 及竞赛课程。
高二、高三阶段:上午以国际课程为核心,下午补充完成尚未修满的国家必修课程。
AP课程方向
高一:
在普通高中要求的 9门核心课程基础上,增设艺术、体育、生涯规划等课程。
高二、高三:
开设覆盖英语、自然科学、人文科学 的 13门 AP 课程。
注重研究型学习,每位学生需完成至少一个研究项目,并产出一定的研究成果。
A-Level课程方向
高一:
课程由国家课程、IGCSE课程、竞赛课程三部分组成。
高二:
融合 AS课程与校本课程,注重过渡与拓展。
高三:
以 A-Level 课程(AL) 为主,课程体系更加精简与优化,帮助学生聚焦核心学科,冲刺海外升学。
录取情况
在2025入学季,深圳中学国际部共有84名同学申请美国院校,其中12名同学获得USNEWS排名前10大学录取,8名同学获得常春藤联盟大学录取,26名同学获得USNEWS排名前20大学录取,66名同学获得USNEWS排名前30大学录取,前30录取率78.6%。
英港加方向:
在2025年度,深圳中学国际部共有若干同学申请英国、香港及加拿大等国家和地区的院校,有学生收获牛津大学、剑桥大学、香港大学、香港科技大学及多伦多大学等知名学府录取。
数据来源:翠鹿升学榜、Jam爸爸
校园环境&设施
深圳中学的俯视图展示了学校的全貌。可以看到一个大型操场和足球场,周围环绕着跑道。紧邻操场的是学校的教学楼和行政区域,整组建筑结构紧凑、风格现代。这片区域布局合理,高效利用了空间,充分体现了教学设施与体育设施的完备配置。
深中共有两个食堂,分别是有品食堂和小食堂,里面有自选、小炒等多个档口,其中有品食堂就有8个不同菜系,且空间也比小食堂大一些。

体育馆是学校的重要设施之一,为学生提供了一个多功能的体育活动场所。体育馆内设有标准的篮球场、羽毛球场、排球场等场地,能够满足各种室内体育活动的需求。此外,体育馆还配备了现代化的健身器材和运动设施,为学生提供全面的体育锻炼环境。体育馆的设计注重通风和采光,确保在各种天气条件下都能为学生提供舒适的运动空间。


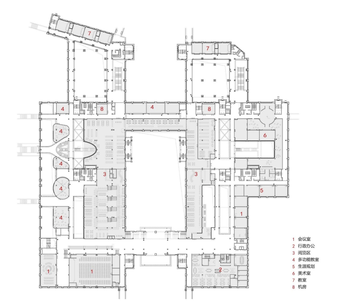
(教学楼一/二楼平面图)
深圳中学平面图展示了学校各个功能区域的分布。图中包括会议室、行政办公室、阅览区、多功能教室、美术教室、普通教室和机房等。这些区域的布局体现了学校在教育、行政和学生发展方面的全面规划。
